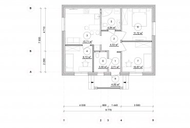
Количество этажей: Одноэтажный
Количество комнат: 3
Размер: 10,7 м х 12 м
Площадь: 67 м2
• компактный дом с удобной планировкой
• крытое крыльцо
Одноэтажный дом 67 м2. Компактный дом с тремя изолированными спальнями, отдельной гостиной 15,71 м2, просторный холл, ванная 4,94 м2
*Комплектацию можно согласовать индивидуально
| Виды работ | |
|---|---|
| Фундамент (буронабивные сваи глубиной до 2м, ростверк 400*500 мм) | |
| Бетонный пол по грунту 100мм | |
| Закладные трубы под вывод канализации, ввод воды и электричества | |
| Монолитные стены с утеплением по немецкой технологии | |
| Плоская /скатная кровля (согласно проекта) | |
| Перегородки межкомнатные из газобетона | |
| Окна ПВХ стеклопакет 40мм, профиль 70 мм | |
| Скважина глубиной до 30м с оборудованным пластиковым кессоном и вводом воды в дом | |
| Станция биологической очистки с вводом в дом и подключением | |
| Отопление теплый пол с электрическим котлом 12кВТ, бойлером. Сухая стяжка пола | |
| Электромонтаж по дому с подрозетными коробами | |
| Разводка воды по дому | |
| Разработка дизайн проекта наружной отделки | |
| Внешняя отделка фасада (цена зависит от выбранного материала) | |
| Разработка дизайн проекта внутренней отделки | |
| Внутренняя чистовая отделка по дизайн-проекту | |
| Итого: от 3 915 930 руб. | от 3 915 930 руб. |
| Виды работ | |
|---|---|
| Фундамент (буронабивные сваи глубиной до 2м, ростверк 400*500 мм) | |
| Бетонный пол по грунту 100мм | |
| Закладные трубы под вывод канализации, ввод воды и электричества | |
| Монолитные стены с утеплением по немецкой технологии | |
| Плоская /скатная кровля (согласно проекта) | |
| Перегородки межкомнатные из газобетона | |
| Окна ПВХ стеклопакет 40мм, профиль 70 мм | |
| Скважина глубиной до 30м с оборудованным пластиковым кессоном и вводом воды в дом | |
| Станция биологической очистки с вводом в дом и подключением | |
| Отопление теплый пол с электрическим котлом 12кВТ, бойлером. Сухая стяжка пола | |
| Электромонтаж по дому с подрозетными коробами | |
| Разводка воды по дому | |
| Разработка дизайн проекта наружной отделки | |
| Внешняя отделка фасада (цена зависит от выбранного материала) | |
| Разработка дизайн проекта внутренней отделки | |
| Внутренняя чистовая отделка по дизайн-проекту | |
| Итого: от 4 818 155 руб. | от 4 818 155 руб. |
| Виды работ | |
|---|---|
| Фундамент (буронабивные сваи глубиной до 2м, ростверк 400*500 мм) | |
| Бетонный пол по грунту 100мм | |
| Закладные трубы под вывод канализации, ввод воды и электричества | |
| Монолитные стены с утеплением по немецкой технологии | |
| Плоская /скатная кровля (согласно проекта) | |
| Перегородки межкомнатные из газобетона | |
| Окна ПВХ стеклопакет 40мм, профиль 70 мм | |
| Скважина глубиной до 30м с оборудованным пластиковым кессоном и вводом воды в дом | |
| Станция биологической очистки с вводом в дом и подключением | |
| Отопление теплый пол с электрическим котлом 12кВТ, бойлером. Сухая стяжка пола | |
| Электромонтаж по дому с подрозетными коробами | |
| Разводка воды по дому | |
| Разработка дизайн проекта наружной отделки | |
| Внешняя отделка фасада (цена зависит от выбранного материала) | |
| Разработка дизайн проекта внутренней отделки | |
| Внутренняя чистовая отделка по дизайн-проекту | |
| Итого: от 6 300 000 руб. | от 6 300 000 руб. |
| Виды работ | |
|---|---|
| Фундамент (буронабивные сваи глубиной до 2м, ростверк 400*500 мм) | |
| Бетонный пол по грунту 100мм | |
| Закладные трубы под вывод канализации, ввод воды и электричества | |
| Монолитные стены с утеплением по немецкой технологии | |
| Плоская /скатная кровля (согласно проекта) | |
| Перегородки межкомнатные из газобетона | |
| Окна ПВХ стеклопакет 40мм, профиль 70 мм | |
| Скважина глубиной до 30м с оборудованным пластиковым кессоном и вводом воды в дом | |
| Станция биологической очистки с вводом в дом и подключением | |
| Отопление теплый пол с электрическим котлом 12кВТ, бойлером. Сухая стяжка пола | |
| Электромонтаж по дому с подрозетными коробами | |
| Разводка воды по дому | |
| Разработка дизайн проекта наружной отделки | |
| Внешняя отделка фасада (цена зависит от выбранного материала) | |
| Разработка дизайн проекта внутренней отделки | |
| Внутренняя чистовая отделка по дизайн-проекту | |
| Итого: от 9 000 000 руб. | индивидуальный расчет |